湯河原 泉エリア
熱海市泉 相模湾一望 緑に包まれた穏やかな環境 5LDK和モダン邸宅
JR東海道線「湯河原」駅より車で約10分。街中から少し離れ、自然に任せゆったりとした静かな環境での暮らしをお求めの方におすすめです。住所は熱海ですが、生活圏は湯河原町になります。お車があれば15分圏内に飲食店や金融機関、ショッピングモールなどの利用が可能です。
- 中古戸建
- 湯河原駅 3.7km/車で:10分
- 熱海市泉
- 木造スレート葺き2階建て
- 築31年(1994年5月築)
- 4,980 万円
Keyword
海眺望別荘にも永住にも陽当たり良好
Sales Point
熱海市泉の豊かな自然に囲まれた心安らぐ閑静な環境。高台に所在し、相模湾と四季折々に変化する自然を望みます。室内は木の温もりを感じる和モダンテイストで、落ち着いた雰囲気に包まれます。リビングには重厚な石造りの暖炉があり、寒い冬も快適に過ごせそうです。間取りはゆとりある5LDK。部屋数・収納豊富です。様々な商業施設が揃う湯河原の海沿いエリアにはお車約8分で行くことができますので、リゾート利用はもちろんご定住にもオススメです。
Check Point
□再建築不可
物件詳細
- 物件番号:
- 2kd-0000247
主要経路
- 最寄駅:
- 湯河原
- アクセス:
- 3.7km/車で:10分
敷地
- 所在地:
- 熱海市泉
- 敷地面積:
- 565m² (170.91坪)
- 都市計画:
- 非線引区域
- 地目:
- 山林
- 用途地域:
- 無指定
- 建ぺい率:
- 40%/容積率:200%
- 土地権利:
- 所有権
- 現況:
- 空
- 現況引渡:
- 相談
設備
- 水道:
- 公営水道
- 電気:
- 東京電力
- ガス:
- 個別プロパン
- 排水:
- 個別浄化槽
温泉
- 温泉:
- 不可
建物
- 構造:
- 木造スレート葺き
- 築年月日:
- 1994年5月1日
- 階数:
- 地上 2 階
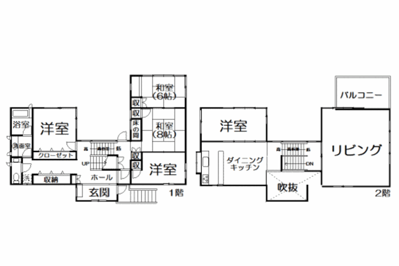
- 間取り:
- 5LDK
- 延床面積:
- 147.08m² (44.49坪)
- 駐車場:
- 有:駐車台数:1台
- 内見可否:
- 可












