熱海 伊豆山エリア
サンヴェール熱海伊豆山 7階南向き2LDK 共有施設充実
JR東海道線「熱海」駅から5.5km。県道十国峠線沿い。伊豆山から泉へと抜ける峠近く、標高300m付近に位置します。バス便の通る場所で周囲はリゾートマンションや高級保養地、七尾団地があり、リゾートや保養研修目的、定住などが混在している場所です。伊豆半島の大地や太平洋を望むダイナミックなロケーションが人気。ペット利用も可能なマンションで、温泉大浴場にはジャグジーやサウナもついています。夏のプールやアスレチックルームなどリゾート施設が充実、ホテルのような優美な館内が旅行気分にさせてくれます。
- 中古マンション
- 熱海駅 5.5km/バス:15分/バス停:熱海自動車学校/停歩:6分
- 熱海市伊豆山1173-8
- 鉄筋コンクリート造12階建て
- 全88戸 築34年(1992年1月築)
- 1,650 万円
Keyword
温泉大浴場アスレチックルーム南向きペット可別荘にも永住にも
Sales Point
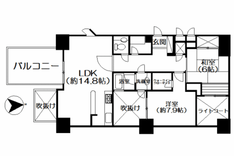
7階に所在する2LDKのお部屋です。南向きで陽当たり良好。バルコニーの他に、吹抜けとライトコートが設けらており、室内のいたるところで陽だまりを感じられます。LDKは約14.8帖とゆとりある広さがございますので、大切なペット(規約有)ものびのび過ごせそうです。ペットと過ごせるリゾートマンションをお探しの方にもオススメです。
Check Point
□その他の費用については調査中です。□管理会社:株式会社エンゼルコミュニティ 全部委託 □管理員勤務形態:日勤 9時~17時 火曜定休
物件詳細
- 物件番号:
- 4ms-0000217
主要経路
- 最寄駅:
- 熱海
- アクセス:
- 5.5km/バス:15分/バス停:熱海自動車学校/停歩:6分
敷地
- 所在地:
- 熱海市伊豆山1173-8
- 都市計画:
- 非線引区域
- 地目:
- 宅地
- 用途地域:
- 第一種中高層住居専用地域
- 防火地域:
- 法22・23条地域
- 土地権利:
- 所有権
- 現況:
- 空
- 現況引渡:
- 相談
設備
- 水道:
- 公営水道
- 電気:
- 東京電力
- ガス:
- 都市ガス
- 排水:
- 集中浄化槽
温泉
- 温泉:
- 付
建物
- 建物名称:
- サンヴェール熱海伊豆山
- 構造:
- 鉄筋コンクリート造
- 築年月日:
- 1992年1月1日
- 階数:
- 地下 1 階/地上 12 階
- 総室数:
- 88
- 間取り:
- 2LDK
- 室位置:
- 7階
- バルコニー:
- 18m² (5.45坪)
- 専有面積:
- 84.49m² (25.56坪)
- ペット:
- 可(規制有)
- 駐車場:
- 有
- 内見可否:
- 可
管理費等
- 管理費:
- 38,750円/月
- 修繕積立金:
- 29,060円/月
- 取引態様:
- 媒介






